Hyr direkt utan kötid!










Kikarvägen
Järfälla
Hyreskostnad
5560 kr/månad
Information
Antal rum
1 rum
Storlek
18 m²
Bostadstyp
Hus
Möblerad
Möblerad
Djur
Fråga hyresvärd
Parkering
Fråga hyresvärd
Våning
Fråga hyresvärd
Beskrivning
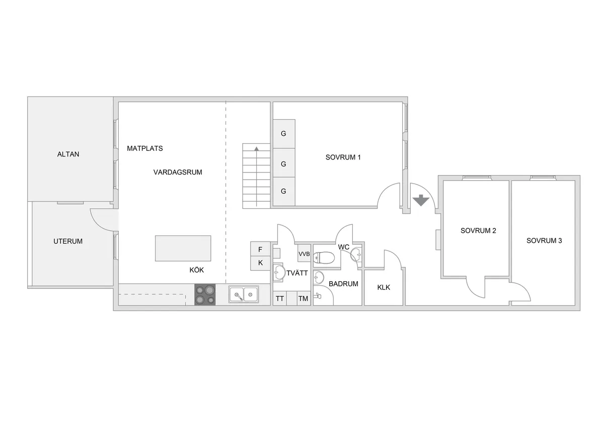
Rum för uthyrning – endast tjejer. Ligger i Viksjö, Järfälla, i en villa med två våningar. På bottenvåningen finns tre sovrum, och ett av dem kommer att hyras ut. Första våningen inkluderar köket, var
Egenskaper
- Frys
- Ugn
- Diskmaskin
- Spis
- Mikrovågsugn
- Dusch
- Toalett
- Tvättmaskin
- Tvättstuga
- Internet
- Parkering ingår
- Kylskåp
- Möbler
Liknande annonser
Hyreskostnad5560 kr/mån







































































































