Hyr direkt utan kötid!


Tylösandsvägen
Halmstad
Hyreskostnad
5600 kr/månad
Information
Antal rum
1 rum
Storlek
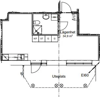
32 m²
Bostadstyp
Lägenhet
Möblerad
Fråga hyresvärd
Djur
Fråga hyresvärd
Parkering
Finns
Våning
1
Beskrivning
Välkommen till Villa Solhäll i Tylösand! Här hyr du en möblerad enrumslägenhet med allt du behöver. Tv, internet, värme (dvs all el) ingår i priset. Tvättstuga, parkering och trädgård finns att ta de
Egenskaper
- Parkering
- Uteplats
- Tvättrum
- Köksfläkt
Liknande annonser
Hyreskostnad5600 kr/mån


















































































