Hyr direkt utan kötid!




Enköpingsvägen
Järfälla
Hyreskostnad
16617 kr/månad
Information
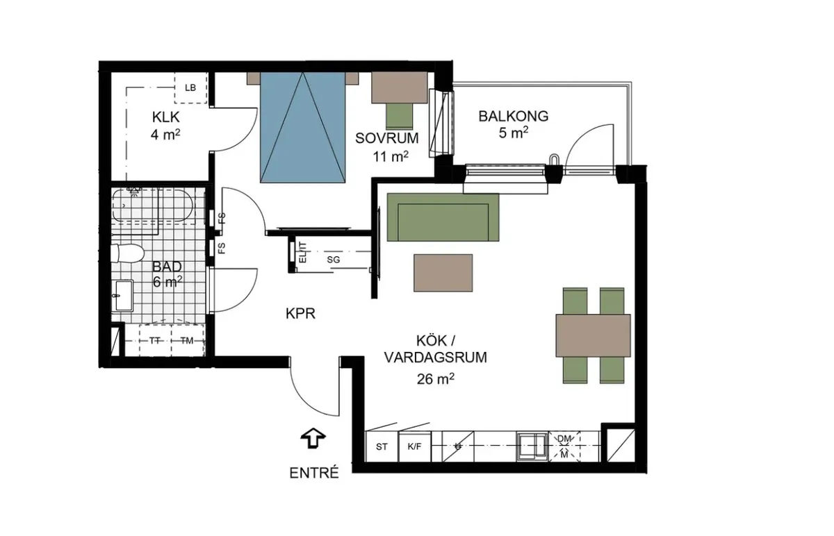
Antal rum
3 rum
Storlek
75 m²
Bostadstyp
Lägenhet
Möblerad
Fråga hyresvärd
Djur
Fråga hyresvärd
Parkering
Fråga hyresvärd
Våning
3
Beskrivning
Om bostäderna Alla lägenheter har vitmålade väggar, parkettgolv av ek och fönsterbänkar i granit. I hallen finns en mindre yta med klinkergolv. Köken har vit skåpsinredning med kakel som stänkskydd oc
Egenskaper
- Hiss
- Balkong
- pentry
- Köksfläkt
- Dusch
- drier
- Diskmaskin
- Tvättmaskin
Liknande annonser
Hyreskostnad16617 kr/mån























































































































