Hyr direkt utan kötid!










Veddestabron
Järfälla
Hyreskostnad
16617 kr/månad
Information
Antal rum
3 rum
Storlek
77 m²
Bostadstyp
Lägenhet
Möblerad
Fråga hyresvärd
Djur
Tillåts
Parkering
Fråga hyresvärd
Våning
Fråga hyresvärd
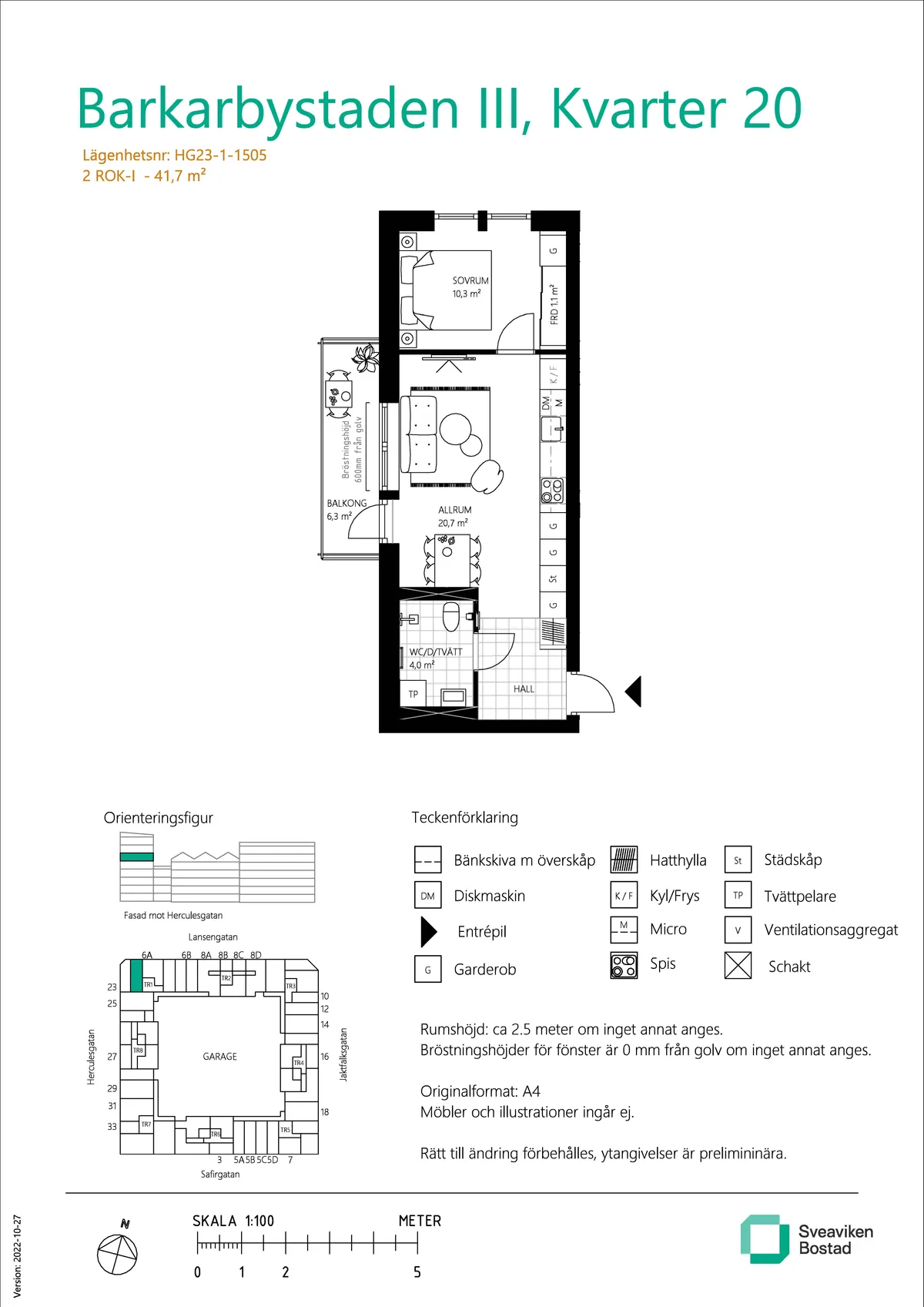
Beskrivning
Samtliga lägenheter har vitmålade väggar, parkettgolv av ek och fönsterbänkar i granit. I hallen finns en mindre yta med klinkergolv. Köken har vit skåpinredning med kakel som stänkskydd och laminatbä
Egenskaper
- Balkong
- Hiss
- Torktumlare
- Husdjur tillåtna
- Säkerhetsdörr
- TV ingår
- Värme ingår
- Garage
- Diskmaskin
- Tvättmaskin
- Dusch
Liknande annonser
Hyreskostnad16617 kr/mån


































































