Hyr direkt utan kötid!










Vattengatan
Norrköping
Hyreskostnad
11116 kr/månad
Information
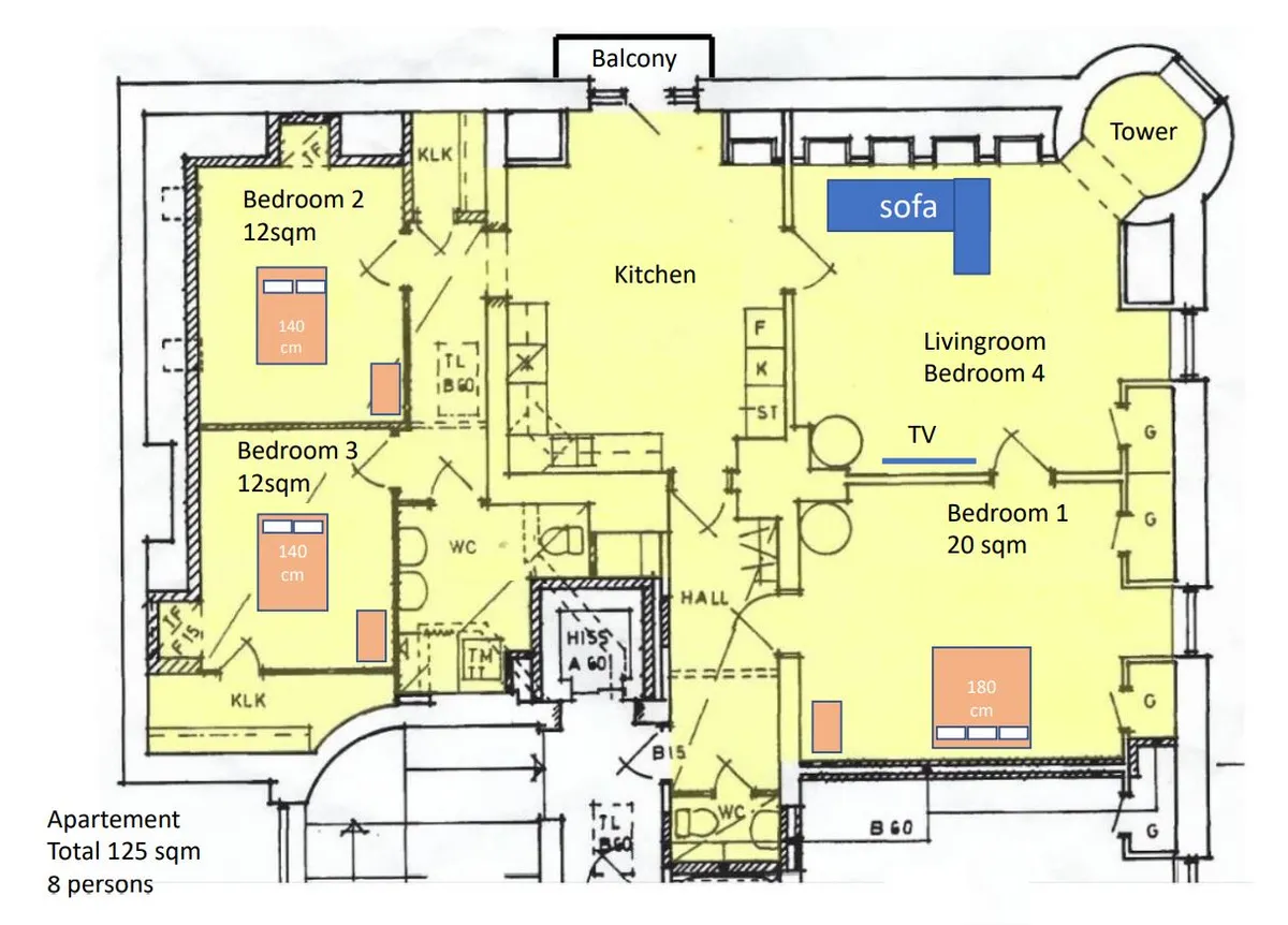
Antal rum
4 rum
Storlek
90 m²
Bostadstyp
Lägenhet
Möblerad
Fråga hyresvärd
Djur
Fråga hyresvärd
Parkering
Fråga hyresvärd
Våning
Fråga hyresvärd
Beskrivning
Trevlig, fräsch och genomgående 4a. Nära till det mesta, såsom Resecentrum, Folkparken, Åbackarna, Campus samt allt vad centrala Norrköping har att erbjuda i form av affärer och restauranger. Lägenh
Egenskaper
- Diskmaskin
- Dusch
- Badkar
- Hiss
- Tvättstuga
- Säkerhetsdörr
- Värme ingår
- Vatten ingår
Liknande annonser
Hyreskostnad11116 kr/mån























































