Hyr direkt utan kötid!












Skarpbrunnavägen
Norsborg
Hyreskostnad
12800 kr/månad
Information
Antal rum
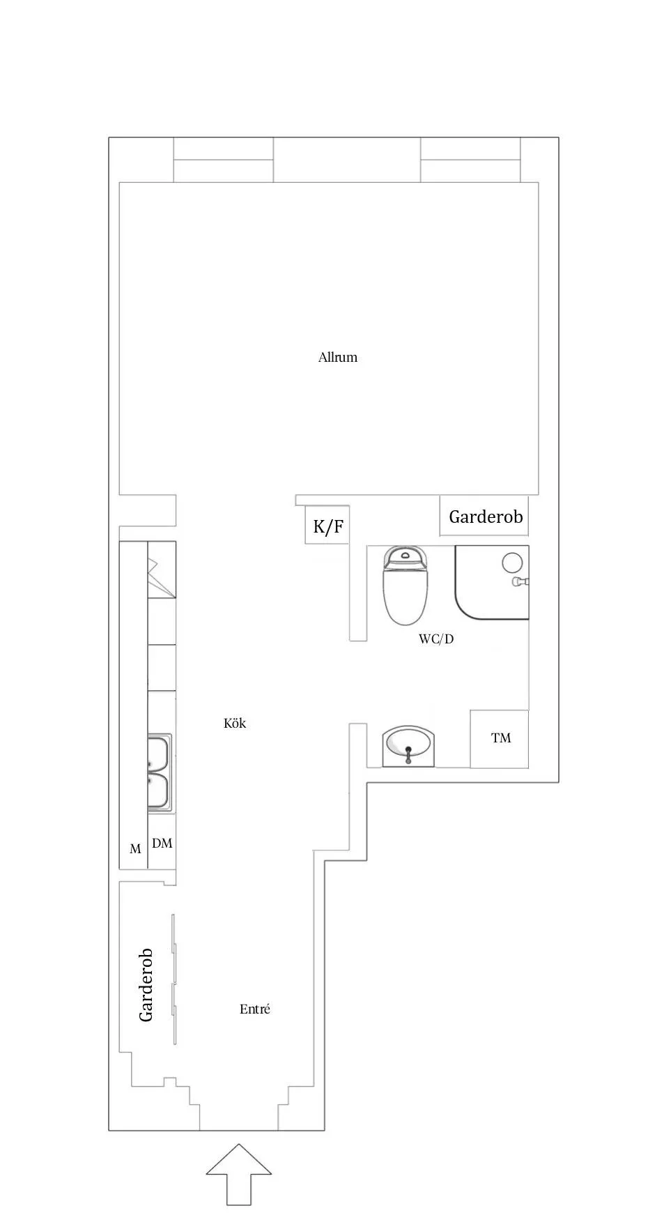
3 rum
Storlek
80 m²
Bostadstyp
Lägenhet
Möblerad
Möblerad
Djur
Fråga hyresvärd
Parkering
Fråga hyresvärd
Våning
Fråga hyresvärd
Beskrivning
Rymlig trea med härlig öppen planlösning mellan kök och vardagsrum. Två sovrum med bra storlek, intill det ena sovrummet finns även en walk-in closet. Stor och härlig uteplats med många soltimmar.
Egenskaper
- Möbler
- Tvättstuga
- Frys
- Ugn
- Spis
- Diskmaskin
- Mikrovågsugn
- Badkar
- Parkering ingår
- Uteplats
- Kylskåp
- Toalett
- TV
- Cykelrum
- Barnvagnsrum
Liknande annonser
Hyreskostnad12800 kr/mån









































