Hyr direkt utan kötid!

Kungsgatan
Örebro
Hyreskostnad
7583 kr/månad
Information
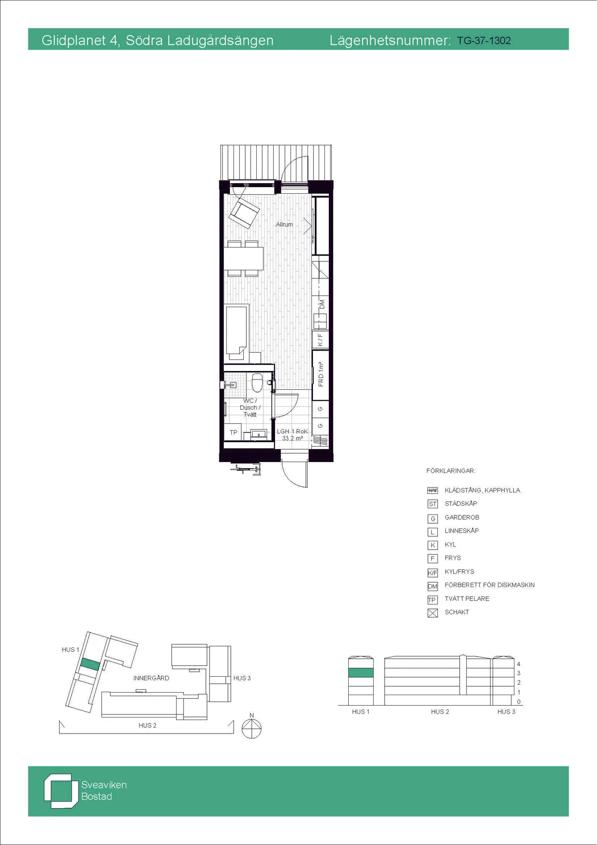
Antal rum
1 rum
Storlek
33 m²
Bostadstyp
Lägenhet
Möblerad
Fråga hyresvärd
Djur
Fråga hyresvärd
Parkering
Fråga hyresvärd
Våning
3
Beskrivning
Detta är en av sju nyproducerade vindslägenheter på Söder i Örebro med inflyttning den 1 april 2026. Vindslägenheterna har fått inredning och ytskikt av mer modernt uttryck men så mycket som möjligt f
Egenskaper
- Uteplats
- Tvättrum
- Köksfläkt
- Dusch
Liknande annonser
Hyreskostnad7583 kr/mån






























































