Hyr direkt utan kötid!








Fredriksdalsgatan
Stockholm
Hyreskostnad
14257 kr/månad
Information
Antal rum
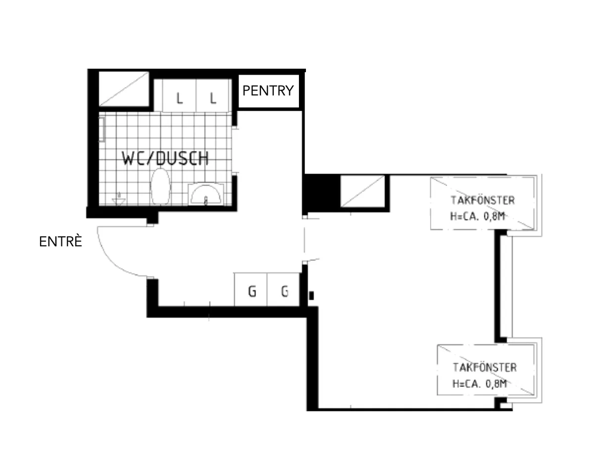
1.5 rum
Storlek
44 m²
Bostadstyp
Lägenhet
Möblerad
Fråga hyresvärd
Djur
Fråga hyresvärd
Parkering
Fråga hyresvärd
Våning
Fråga hyresvärd
Beskrivning
Ljus och välplanerad lägenhet med sjöutsikt – Hammarby Sjöstad Tillträde: 1 januari – Uthyrning i 12 månader Välkommen att hyra denna trivsamma och ljusa lägenhet belägen på attraktiva Fredriksdals
Egenskaper
Liknande annonser
Hyreskostnad14257 kr/mån









































































































