Hyr direkt utan kötid!





Gamla Uppsalagatan
Uppsala
Hyreskostnad
10057 kr/månad
Information
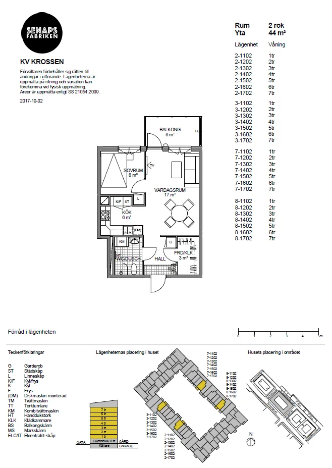
Antal rum
2 rum
Storlek
45.46 m²
Bostadstyp
Lägenhet
Möblerad
Fråga hyresvärd
Djur
Fråga hyresvärd
Parkering
Fråga hyresvärd
Våning
1
Beskrivning
I Uppsala Nyby finns denna välplanerade lägenhet med mycket hög standard och smart planlösning. Lägenheten har högt i tak och är utrustad med stilrent, arkitektritat kök i smakfulla jordfärger och lac
Egenskaper
- Hiss
- Balkong
- Köksfläkt
- Dusch
- drier
- Diskmaskin
- Tvättmaskin
Liknande annonser
Hyreskostnad10057 kr/mån





































