Hyr direkt utan kötid!






Vaksalagatan
Uppsala
Hyreskostnad
8500 kr/månad
Information
Antal rum
1 rum
Storlek
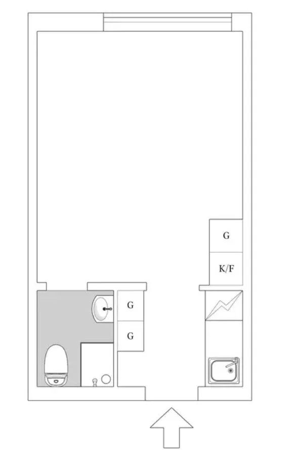
21 m²
Bostadstyp
Lägenhet
Möblerad
Möblerad
Djur
Fråga hyresvärd
Parkering
Fråga hyresvärd
Våning
Fråga hyresvärd
Beskrivning
Väl optimerad 1a ca 10-15min promenad från Uppsala centralstation. Hyrs ut tillsvidare fullt möblerad. 140cm säng, tv, med god förvaring. Tvättstuga & cykelförråd finns i huset. (Fler bilder kommer in
Egenskaper
- Fransk balkong
- Internet
- TV
- Hiss
- Återvinning
- Säkerhetsdörr
- Kylskåp
- Möbler
- Frys
- Ugn
- Spis
- Mikrovågsugn
- Pentry
- Dusch
- Toalett

Egenskaper
- Fransk balkong
- Internet
- TV
- Hiss
- Återvinning
- Säkerhetsdörr
- Kylskåp
- Möbler
- Frys
- Ugn
- Spis
- Mikrovågsugn
- Pentry
- Dusch
- Toalett
I bostadens närområde
Restaurang i närheten
By Petridis
1080 m
Matbutik i närheten
ICA Nära Brantingstorg
840 m
Skola i närheten
Labanskolan
1200 m
Park i närheten
Gränbyfältet
720 m
i närheten
ICA Nära Råbyvägen
1200 m
Sjukhus i närheten
Blod- och tumörsjukdomars behandlingsmottagning i Gränby
480 m
Kafé i närheten
MoeJoe's Juicebar
240 m
Liknande annonser
Hyreskostnad8500 kr/mån














































































