Hyr direkt utan kötid!





Bäckby Torggata
Västerås
Hyreskostnad
6660 kr/månad
Information
Antal rum
2 rum
Storlek
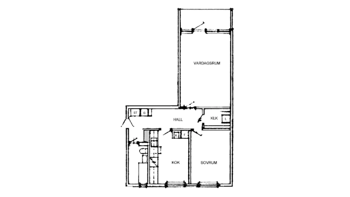
42 m²
Bostadstyp
Lägenhet
Möblerad
Fråga hyresvärd
Djur
Fråga hyresvärd
Parkering
Fråga hyresvärd
Våning
1
Beskrivning
- Ljus och rymlig hörnlägenhet med separat sovrum och praktisk klädkammare. Den öppna planlösningen i kök- och vardagsrum ger ett fint ljusinsläpp, och här får du plats med både soffgrupp och matbord.
Egenskaper
- Hiss
- Balkong
- Uteplats
- Tvättrum
- Dusch
Liknande annonser
Hyreskostnad6660 kr/mån
































































