Hyr direkt utan kötid!












Enkelstuguvägen
Västerås
Hyreskostnad
5799 kr/månad
Information
Antal rum
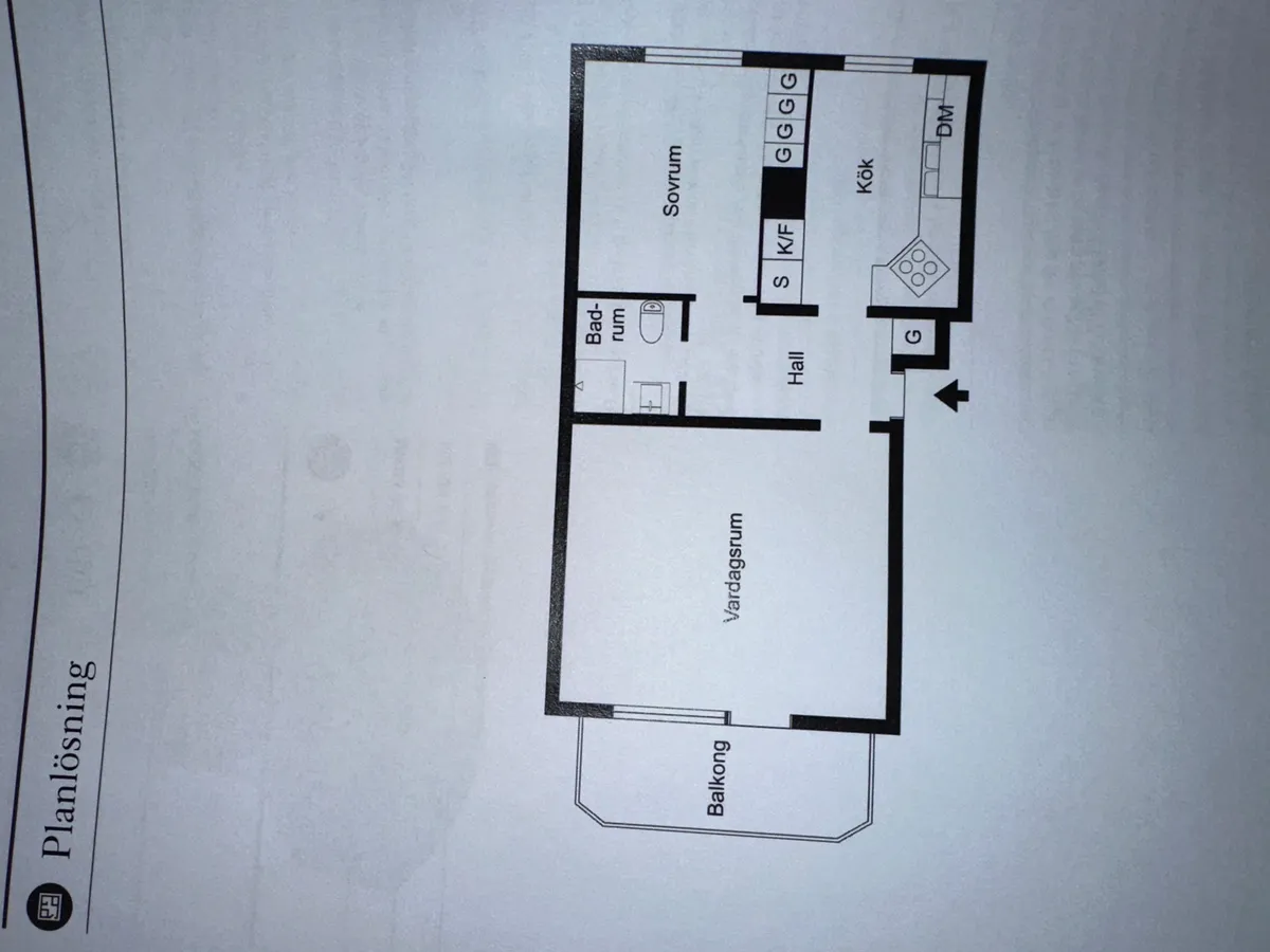
1 rum
Storlek
35 m²
Bostadstyp
Lägenhet
Möblerad
Fråga hyresvärd
Djur
Tillåts
Parkering
Fråga hyresvärd
Våning
Fråga hyresvärd
Beskrivning
Fräsch ett rum och kokvrå i charmiga Vallby! Här bor du på andra våningen i huset och njuter av ljusa, fräscha ytor som känns som nya. Lägenheten erbjuder en rymlig och genomtänkt planlösning med gott
Egenskaper
- Dusch
- Rökning tillåten
- Husdjur tillåtna
- TV ingår
- Värme ingår
- Vatten ingår
Liknande annonser
Hyreskostnad5799 kr/mån







































































