Hyr direkt utan kötid!






Näverlursgatan
Västra Frölunda
Hyreskostnad
5717 kr/månad
Information
Antal rum
1 rum
Storlek
10 m²
Bostadstyp
Lägenhet
Möblerad
Möblerad
Djur
Tillåts
Parkering
Fråga hyresvärd
Våning
Fråga hyresvärd
Beskrivning
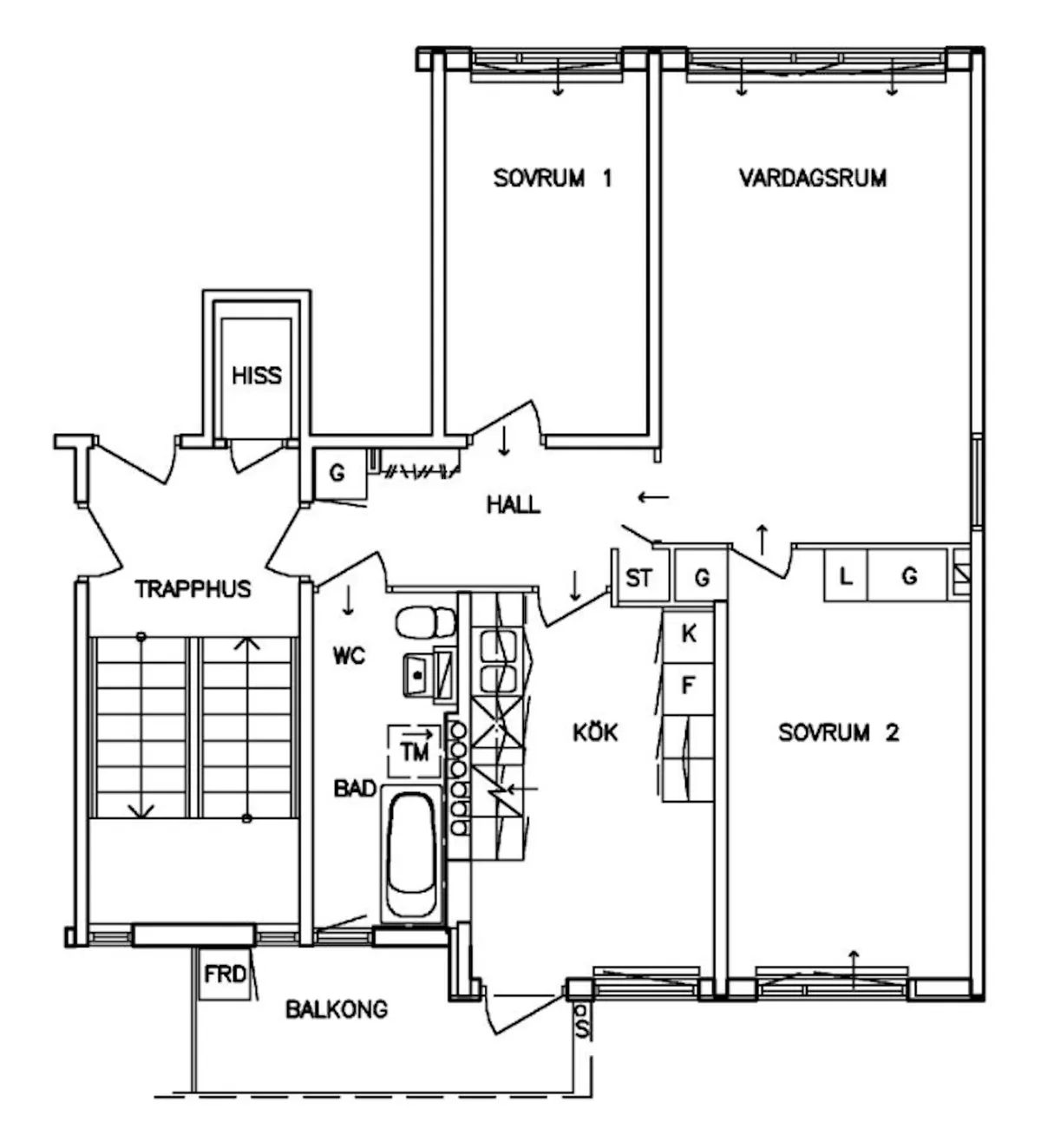
Då min nuvarande inneboende flyttar ut i april så söker jag någon ny att dela lägenhet med. Hyr ut ett sovrum (Sovrum 1 på planlösningen) i vår 115 kvm stora femma. Rummet är möblerat med en stor sän
Egenskaper
- Kylskåp
- Frys
- Ugn
- Spis
- Diskmaskin
- Mikrovågsugn
- Tvättmaskin
- Torktumlare
- Internet
- TV
- Balkong
- Hiss
- Återvinning
- Säkerhetsdörr
- Husdjur tillåtna
- Möbler

Egenskaper
- Kylskåp
- Frys
- Ugn
- Spis
- Diskmaskin
- Mikrovågsugn
- Tvättmaskin
- Torktumlare
- Internet
- TV
- Balkong
- Hiss
- Återvinning
- Säkerhetsdörr
- Husdjur tillåtna
- Möbler
I bostadens närområde
Hållplats i närheten
Björkhöjdsgatan
840 m
Matbutik i närheten
Hemköp Västra Frölunda Torg
360 m
Restaurang i närheten
Da Mario
240 m
Kafé i närheten
Adams Café
240 m
Skola i närheten
Prolympia Idrottsskola
1080 m
Sjukhus i närheten
Slottsbergskliniken AB
840 m
Liknande annonser
Hyreskostnad5717 kr/mån
























































































