Hyr direkt utan kötid!

























Rådjursvägen
Gotlands Tofta
Hyreskostnad
7360 kr/månad
Information
Antal rum
1.5 rum
Storlek
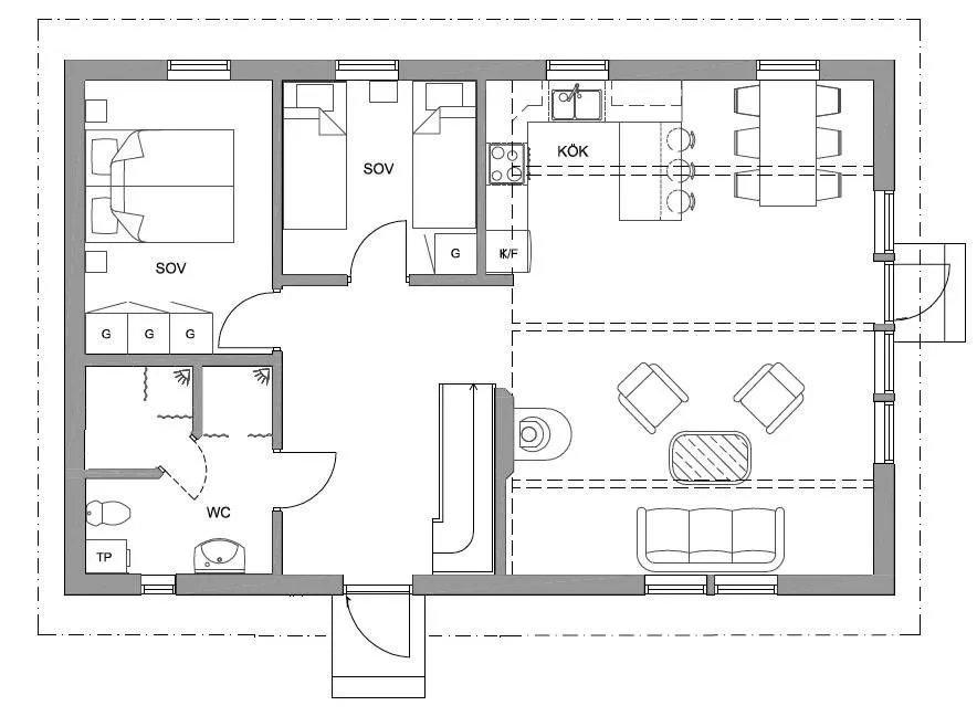
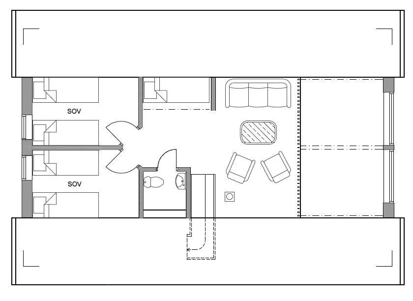
36 m²
Bostadstyp
Stuga
Möblerad
Möblerad
Djur
Fråga hyresvärd
Parkering
Fråga hyresvärd
Våning
Fråga hyresvärd
Beskrivning
Fin komplementsbyggnad om 36 m2 i Gnisvärd. Nybbyggt 2021 och endast använd sommartid. Öppen planlösning med sovdel badrum med dusch, kök med spishäll, ugn med inbyggd micro (ikea) och diskmaskin, mi
Egenskaper
- Frys
- Ugn
- Spis
- Diskmaskin
- Mikrovågsugn
- Tvättmaskin
- Parkering ingår
- Möbler
- Kylskåp
- Dusch
- Toalett
- Uteplats
- Luftkonditionering
- Internet
- TV
Liknande annonser
Hyreskostnad7360 kr/mån








































































































































