Hyr direkt utan kötid!

Älvans väg
Umeå
Hyreskostnad
10933 kr/månad
Information
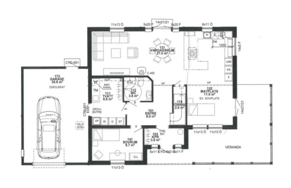
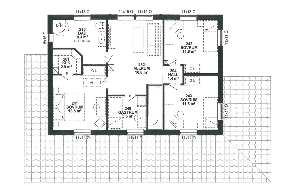
Antal rum
3 rum
Storlek
85 m²
Bostadstyp
Bostad
Möblerad
Möblerad
Djur
Fråga hyresvärd
Parkering
Fråga hyresvärd
Våning
Fråga hyresvärd
Ingen beskrivning angiven
Egenskaper
- Möblerad
Liknande annonser
Hyreskostnad10933 kr/mån
















































































