Hyr direkt utan kötid!









Älta Idrottsväg: lägenhet, 2 rok
Älta
Hyreskostnad
11750 kr/månad
Information
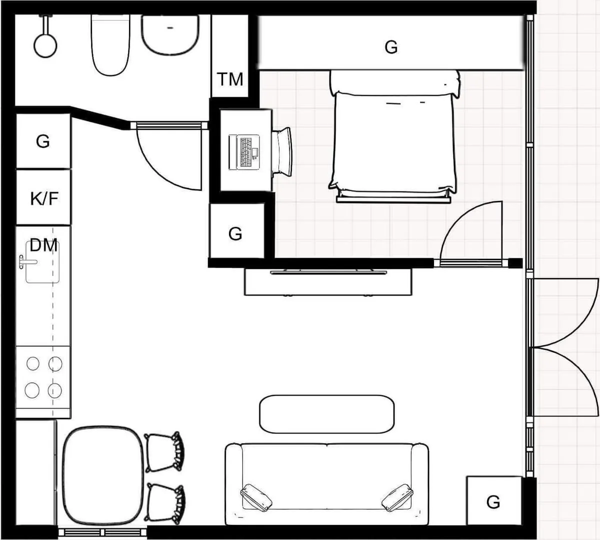
Antal rum
2 rum
Storlek
30 m²
Bostadstyp
Lägenhet
Möblerad
Fråga hyresvärd
Djur
Fråga hyresvärd
Parkering
Fråga hyresvärd
Våning
Fråga hyresvärd
Beskrivning
Vi söker en hyresgäst eller möjligtvis ett par som önskar hyra vår mysiga lägenhet som ligger i anslutning till vår villa men med separat ingång. Den ligger på lugn återvändsgata alldeles vid Ältasjön
Egenskaper
- Uteplats
- Parkering ingår
- Frys
- Ugn
- Spis
- Diskmaskin
- Mikrovågsugn
- Dusch
- Toalett
- Tvättmaskin
- Kylskåp
- Internet
Egenskaper
- Uteplats
- Parkering ingår
- Frys
- Ugn
- Spis
- Diskmaskin
- Mikrovågsugn
- Dusch
- Toalett
- Tvättmaskin
- Kylskåp
- Internet
Liknande annonser
Hyreskostnad11750 kr/mån









