Hyr direkt utan kötid!






Oxtorgsgatan: lägenhet, 2 rok
Åtvidaberg
Hyreskostnad
6589 kr/månad
Information
Antal rum
2 rum
Storlek
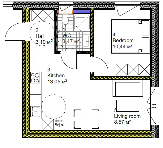
42 m²
Bostadstyp
Lägenhet
Möblerad
Fråga hyresvärd
Djur
Tillåts
Parkering
Finns
Våning
Fråga hyresvärd
Beskrivning
Välkommen till Oxtorgsgatan 10! Lägenheten är på 2 rum och kök, med en boyta på 42,7 kvm. Köket är utrustat med allt man kan tänkas behöva, inklusive kyl, frys, spis, diskmaskin och mikro. Lägenheten
Egenskaper
- Diskmaskin
- Tvättmaskin
- Dusch
- Balkong
- Hiss
- Torktumlare
- Uteplats
- Husdjur tillåtna
- Säkerhetsdörr
- Parkering
Egenskaper
- Diskmaskin
- Tvättmaskin
- Dusch
- Balkong
- Hiss
- Torktumlare
- Uteplats
- Husdjur tillåtna
- Säkerhetsdörr
- Parkering
Liknande annonser
Hyreskostnad6589 kr/mån








