Hyr direkt utan kötid!





Sadelmakarebyn
Bunkeflostrand
Hyreskostnad
11601 kr/månad
Information
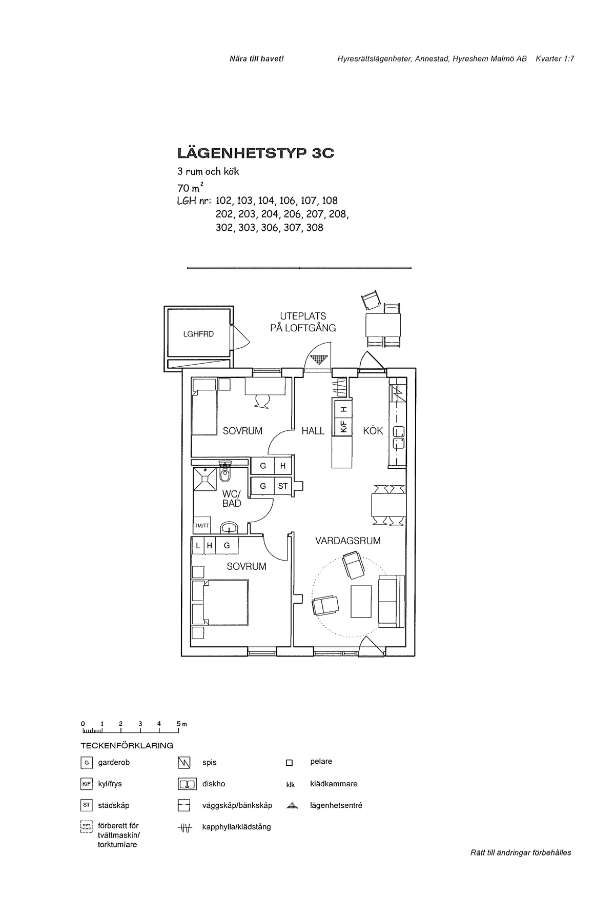
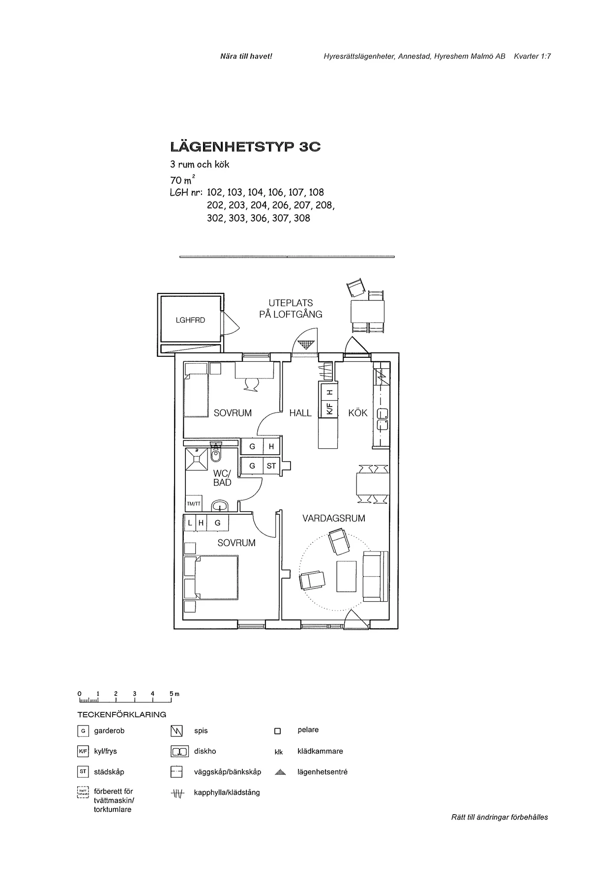
Antal rum
3 rum
Storlek
70 m²
Bostadstyp
Lägenhet
Möblerad
Fråga hyresvärd
Djur
Fråga hyresvärd
Parkering
Fråga hyresvärd
Våning
5
Beskrivning
Välkommen till denna 3 rum och kök på 70 kvm (nyligen omgjord från 2 rum och kök). Lägenheten ligger på femte våningen. Diskmaskin, tvättmaskin, torktumlare samt spis med induktionshäll och varmluftsu
Egenskaper
- Köksfläkt
- Dusch
- drier
- Diskmaskin
- Tvättmaskin
Liknande annonser
Hyreskostnad11601 kr/mån































































