Hyr direkt utan kötid!








Sadelmakarebyn: lägenhet, 3 rok
Bunkeflostrand
Hyreskostnad
11511 kr/månad
Information
Antal rum
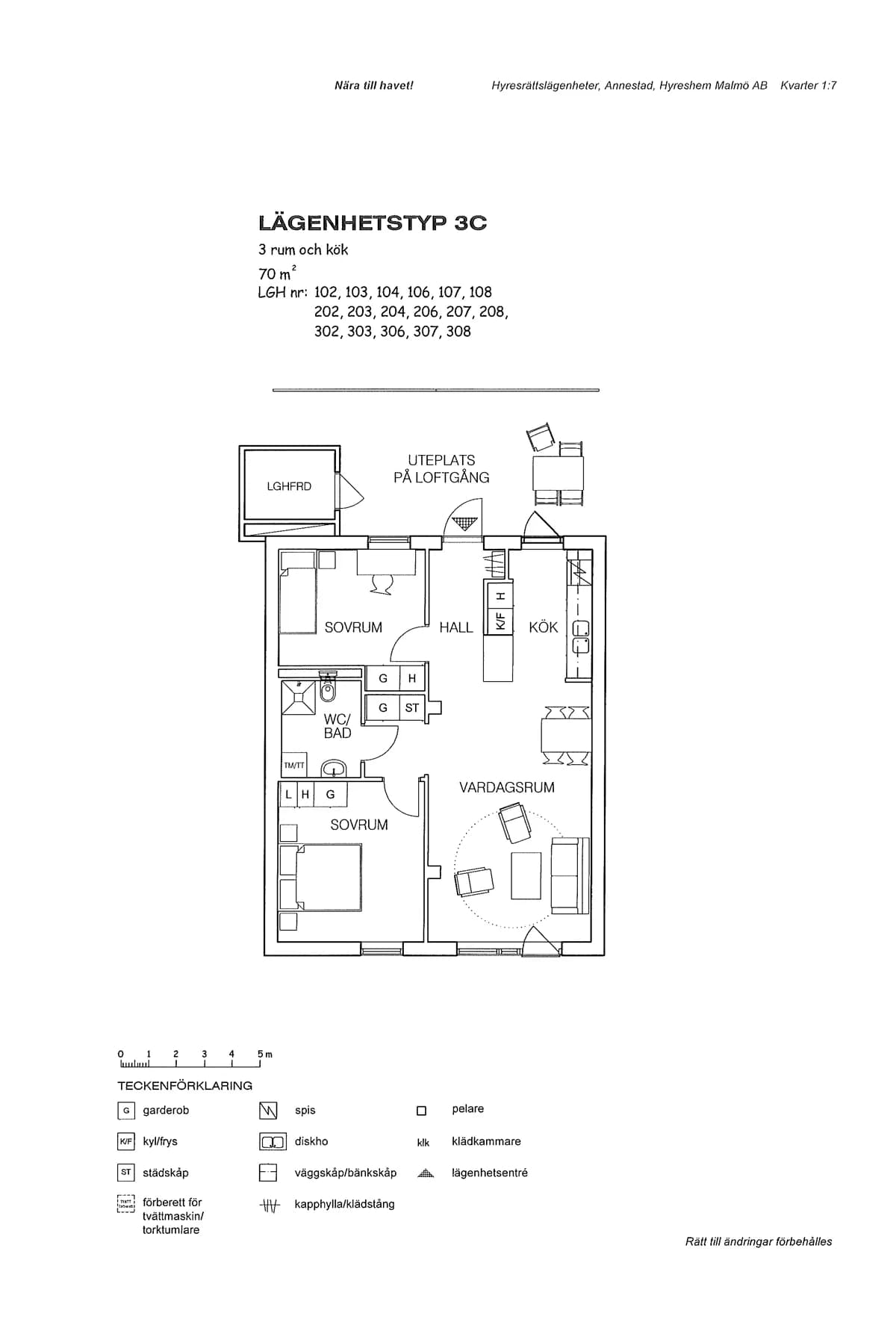
3 rum
Storlek
70 m²
Bostadstyp
Lägenhet
Möblerad
Fråga hyresvärd
Djur
Tillåts
Parkering
Finns
Våning
Fråga hyresvärd
Beskrivning
Välkommen till denna 3 rum och kök på 70 kvm! Lägenheten ligger på andra våningen. Spis med keramikhäll och varmluftsugn ingår i lägenheten. Diskmaskin ingår. Deposition tillkommer om 1-3 månadshyro
Egenskaper
- Diskmaskin
- Dusch
- Tvättstuga
- Rökning tillåten
- Husdjur tillåtna
- Säkerhetsdörr
- TV ingår
- Värme ingår
- Vatten ingår
- El ingår
- Parkering
Egenskaper
- Diskmaskin
- Dusch
- Tvättstuga
- Rökning tillåten
- Husdjur tillåtna
- Säkerhetsdörr
- TV ingår
- Värme ingår
- Vatten ingår
- El ingår
- Parkering
I bostadens närområde
Hållplats i närheten
Bunkeflostrand Centrum
1200 m
Restaurang i närheten
Oki Doki Sushi
1200 m
Kafé i närheten
Public
1200 m
Liknande annonser
Hyreskostnad11511 kr/mån









