Hyr direkt utan kötid!







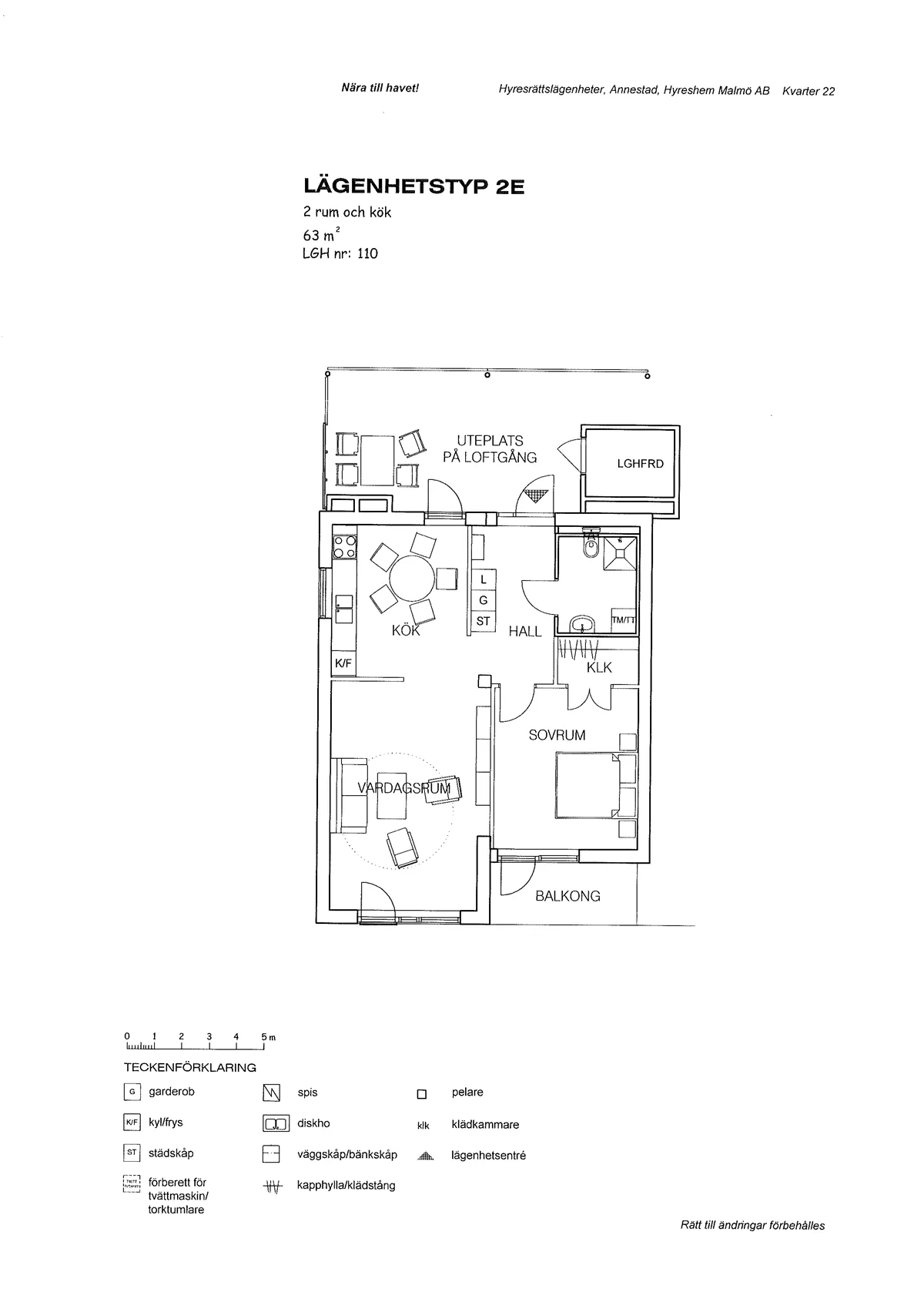
Vagnmakarebyn: lägenhet, 2 rok
Bunkeflostrand
Hyreskostnad
10298 kr/månad
Information
Antal rum
2 rum
Storlek
65 m²
Bostadstyp
Lägenhet
Möblerad
Fråga hyresvärd
Djur
Tillåts
Parkering
Finns
Våning
Fråga hyresvärd
Beskrivning
Välkommen till denna 2:a på 65 kvm på våning 1 i Vagnmakarebyn, Bunkeflostrand. Diskmaskin, tvättmaskin och torktumlare samt duschdörrar i glas finns i lägenheten. Hushållsel debiteras med en fast sum
Egenskaper
- Diskmaskin
- Tvättmaskin
- Dusch
- Torktumlare
- Rökning tillåten
- Husdjur tillåtna
- Säkerhetsdörr
- TV ingår
- Värme ingår
- Vatten ingår
- El ingår
- Parkering
Egenskaper
- Diskmaskin
- Tvättmaskin
- Dusch
- Torktumlare
- Rökning tillåten
- Husdjur tillåtna
- Säkerhetsdörr
- TV ingår
- Värme ingår
- Vatten ingår
- El ingår
- Parkering
I bostadens närområde
Hållplats i närheten
Bunkeflostrand Centrum
1080 m
Restaurang i närheten
Pizzeria Madonna
1200 m
Kafé i närheten
Public
1080 m
Liknande annonser
Hyreskostnad10298 kr/mån









