Hyr direkt utan kötid!








Harvägen: lägenhet, 4 rok
Enköping
Hyreskostnad
12215 kr/månad
Information
Antal rum
4 rum
Storlek
95 m²
Bostadstyp
Lägenhet
Möblerad
Fråga hyresvärd
Djur
Tillåts
Parkering
Fråga hyresvärd
Våning
Fråga hyresvärd
Beskrivning
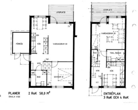
Renoverad lägenhet i radhus liknande naturskönt område. Lägenheten är fördelat på två våningsplan med kök, vardagsrum och badrum på nedervåning. Sovrum och ytterligare ett badrum på övervåningen.
Egenskaper
- Dusch
- Husdjur tillåtna
- Värme ingår
- Vatten ingår
Egenskaper
- Dusch
- Husdjur tillåtna
- Värme ingår
- Vatten ingår
I bostadens närområde
Restaurang i närheten
Pizzeria Hummelsta
480 m
Liknande annonser
Hyreskostnad12215 kr/mån









