Hyr direkt utan kötid!








Gustaf de lavalsväg
Eskilstuna
Hyreskostnad
7642 kr/månad
Information
Antal rum
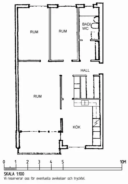
3 rum
Storlek
75 m²
Bostadstyp
Lägenhet
Möblerad
Fråga hyresvärd
Djur
Tillåts
Parkering
Fråga hyresvärd
Beskrivning
Just nu har du möjlighet att hyra en 3 rum och kök i ett lugn område med mycket charm. Lägenheten är ljus med mycket ljusinsläpp. Parkering ingår samt en hyresrabatt på upp till 2000kr/mån ett helt
Egenskaper
- Dusch
- Husdjur tillåtna
- Parkering ingår
Liknande annonser
Hyreskostnad7642 kr/mån