Hyr direkt utan kötid!










Monarkivägen
Falkenberg
Hyreskostnad
9508 kr/månad
Information
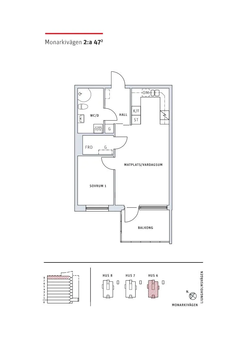
Antal rum
2 rum
Storlek
47 m²
Bostadstyp
Lägenhet
Möblerad
Fråga hyresvärd
Djur
Tillåts
Parkering
Fråga hyresvärd
Våning
Fråga hyresvärd
Beskrivning
De 126 lägenheterna i Monarkihusen är fördelade på 84 st. tvåor och 42 st. treor. Alla lägenheterna är ljusa och har öppna planlösningar som är tillgänglighetsanpassade. Tack vare att kök och vardagsr
Egenskaper
- Diskmaskin
- Tvättmaskin
- Dusch
- Balkong
- Hiss
- Torktumlare
- Husdjur tillåtna
- Värme ingår
- Vatten ingår
Liknande annonser
Hyreskostnad9508 kr/mån









































































