Hyr direkt utan kötid!



Andersbergsringen
Halmstad
Hyreskostnad
4915 kr/månad
Information
Antal rum
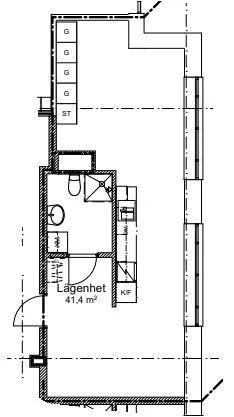
1 rum
Storlek
44 m²
Bostadstyp
Lägenhet
Möblerad
Fråga hyresvärd
Djur
Tillåts
Parkering
Finns
Våning
Fråga hyresvärd
Beskrivning
OM LÄGENHETEN Välkommen till denna kvadratsmarta 1rummare på Andersbergsringen! Här erbjuds ett bekvämt och trivsamt boende i en lugn och grön omgivning. ÖVRIGT Hyran inkluderar värme, vatten
Egenskaper
- Dusch
- Badkar
- Balkong
- Tvättstuga
- Husdjur tillåtna
- Säkerhetsdörr
- Värme ingår
- Vatten ingår
- Parkering
- Garage
Liknande annonser
Hyreskostnad4915 kr/mån

































































