Hyr direkt utan kötid!




Inspektörsgatan
Helsingborg
Hyreskostnad
8585 kr/månad
Information
Antal rum
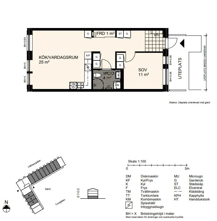
2 rum
Storlek
75 m²
Bostadstyp
Lägenhet
Möblerad
Fråga hyresvärd
Djur
Tillåts
Parkering
Fråga hyresvärd
Våning
Fråga hyresvärd
Beskrivning
OBS! Lägenheten hyrs ut genom digital visning. 3D-visningen hittar ni i annonsen på HomeQ. *Ingen fysisk visning* OM LÄGENHETEN Välkommen till denna tvåa! Modernt kök med genomgående trägolv i hela l
Egenskaper
- Diskmaskin
- Dusch
- Tvättstuga
- Husdjur tillåtna
- Säkerhetsdörr
- Värme ingår
- Vatten ingår
Liknande annonser
Hyreskostnad8585 kr/mån

































































