Hyr direkt utan kötid!

Vättersnipsgränd
Jönköping
Hyreskostnad
12028 kr/månad
Information
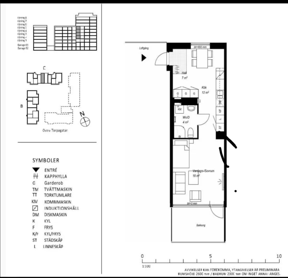
Antal rum
3 rum
Storlek
77 m²
Bostadstyp
Lägenhet
Möblerad
Fråga hyresvärd
Djur
Fråga hyresvärd
Parkering
Fråga hyresvärd
Våning
3
Ingen beskrivning angiven
Egenskaper
- Hiss
- Dusch
Liknande annonser
Hyreskostnad12028 kr/mån






























































