Hyr direkt utan kötid!




V:A Långgatan: lägenhet, 3 rok
Kävlinge
Hyreskostnad
11402 kr/månad
Information
Antal rum
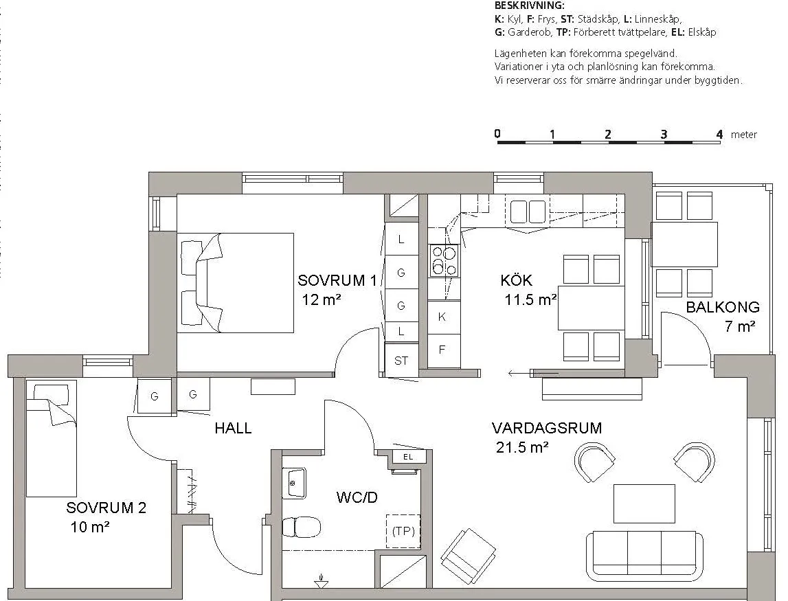
3 rum
Storlek
71 m²
Bostadstyp
Lägenhet
Möblerad
Fråga hyresvärd
Djur
Tillåts
Parkering
Fråga hyresvärd
Våning
Fråga hyresvärd
Beskrivning
Nu kan du snart flytta in i en trevlig lägenhet på första våningen. Man kommer in i hallen som har klinker på golvet. Här finns även städskåp samt garderober. 2 sovrum med parkett på golvet och ljusm
Egenskaper
- Diskmaskin
- Dusch
- Tvättstuga
- Husdjur tillåtna
- Värme ingår
- Vatten ingår
Egenskaper
- Diskmaskin
- Dusch
- Tvättstuga
- Husdjur tillåtna
- Värme ingår
- Vatten ingår
I bostadens närområde
Hållplats i närheten
Kävlinge
960 m
Restaurang i närheten
Dream Garden
1080 m
Kafé i närheten
Stinas i parken
1080 m
Liknande annonser
Hyreskostnad11402 kr/mån









