bostadsval logo
Hyr direkt utan kötid!
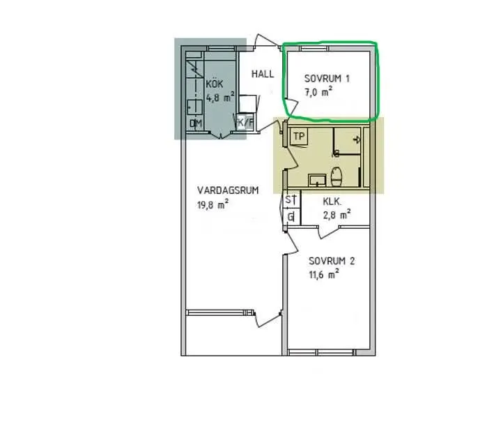
Lägenhet på Vildandsvägen i Lund
Property image 2
Property image 3
Property image 4
0 / 0

Vildandsvägen: lägenhet, 1 rok

Lund
Hyreskostnad
5200 kr/månad

Information

Antal rum
1 rum
Storlek
7
Bostadstyp
Lägenhet
Möblerad
Möblerad
Djur
Tillåts
Parkering
Fråga hyresvärd
Våning
Fråga hyresvärd

Beskrivning

Hej! Jag hyr ut ett rum i min 3:a med inflytt nu men inflyttningsdatum kan diskuteras, lägenheten har tvättmaskin,diskmaskin,balkong. Lägenheten ligger på vildandsvägen på klosters fälad i lund, nära


Egenskaper

  • Frys
  • Ugn
  • Spis
  • Diskmaskin
  • Möbler
  • Kylskåp
  • Torktumlare
  • Tvättmaskin
  • Tvättstuga
  • Torkrum
  • Balkong
  • TV
  • Internet
  • Cykelrum
  • Förråd
  • Husdjur tillåtna

I bostadens närområde

Hållplats i närheten

Lund Idrottsplatsen

1200 m

Matbutik i närheten

ICA Maxi Gunnesbo

1200 m

Restaurang i närheten

La Cucina

1200 m

Kafé i närheten

Espresso House

960 m

Hyreskostnad5200 kr/mån