Hyr direkt utan kötid!








Aglaiavägen
Malmö
Hyreskostnad
7000 kr/månad
Information
Antal rum
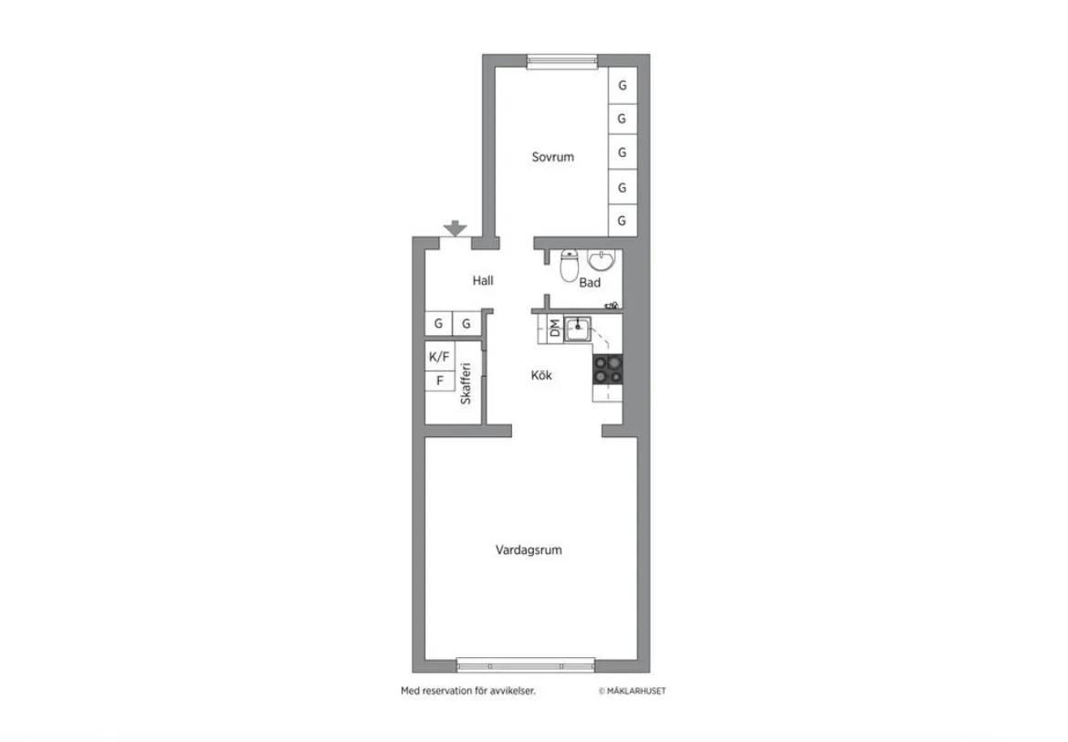
2 rum
Storlek
50 m²
Bostadstyp
Lägenhet
Möblerad
Möblerad
Djur
Fråga hyresvärd
Parkering
Fråga hyresvärd
Våning
Fråga hyresvärd
Beskrivning
Hyr ut 1 sovrum och vardagsrum i en 3 rums lägenhet. Gemensam toa med dusch. Gemensamt kök. Delas med en man i + 60 års åldern. Bor i det andra sovrummet. Avskilt från den del jag hyr ut. Finns trädgå
Egenskaper
- Dusch
- Uteplats
- Tvättstuga
- Kylskåp
- Internet
- TV
- Möbler
- Frys
- Ugn
- Spis
- Mikrovågsugn
Liknande annonser
Hyreskostnad7000 kr/mån























































