Hyr direkt utan kötid!




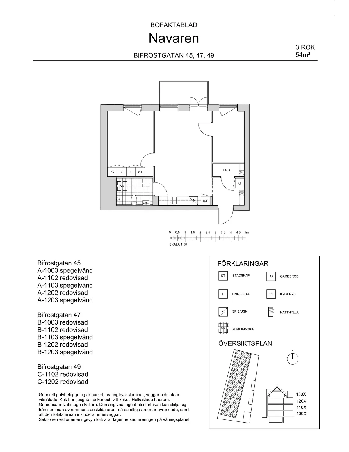
Bifrostgatan: lägenhet, 3 rok, våning 2
Mölndal
Hyreskostnad
10834 kr/månad
Information
Antal rum
3 rum
Storlek
54 m²
Bostadstyp
Lägenhet
Möblerad
Fråga hyresvärd
Djur
Fråga hyresvärd
Parkering
Fråga hyresvärd
Våning
2
Beskrivning
Golvbeläggningen är parkett av högtryckslaminat, väggarna och taket är vitmålade. Kök har ljusgrå luckor och vitt kakel. Helkaklad Badrum. Gemensam tvättstuga i källaren Individuell mätning av varmv
Egenskaper
- Hiss
- Balkong
- Tvättrum
- Köksfläkt
- Dusch
- drier
- Diskmaskin
- Tvättmaskin
Egenskaper
- Hiss
- Balkong
- Tvättrum
- Köksfläkt
- Dusch
- drier
- Diskmaskin
- Tvättmaskin
I bostadens närområde
Hållplats i närheten
Fässberg
840 m
Restaurang i närheten
Sushi Pedaegogen Park
240 m
Matbutik i närheten
ICA Nära Pedagogen Park
120 m
Liknande annonser
Hyreskostnad10834 kr/mån








