Hyr direkt utan kötid!





Högalidsgatan
Motala
Hyreskostnad
12312 kr/månad
Information
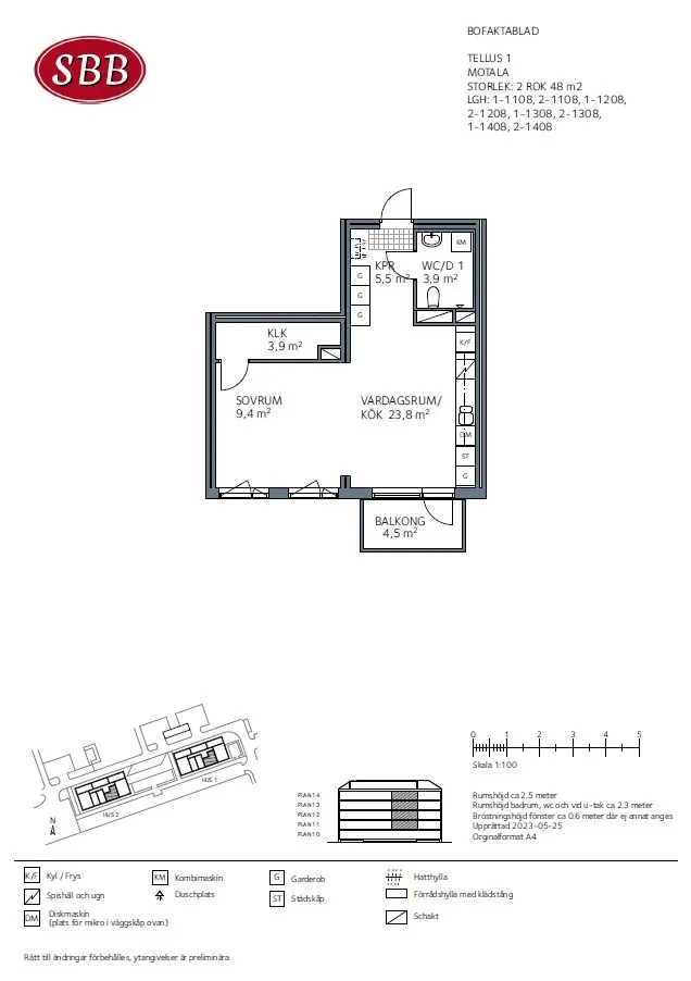
Antal rum
4 rum
Storlek
118 m²
Bostadstyp
Lägenhet
Möblerad
Fråga hyresvärd
Djur
Fråga hyresvärd
Parkering
Fråga hyresvärd
Våning
2
Beskrivning
Stor och trevlig lägenhet i litet lugnt hyreshus med endast 4st lägenhet i området Övre Holm, Motala. Området / omgivningen är att betrakta som ett villaområde med ett fåtal mindre hyreshus. Lägenhe
Egenskaper
- Köksfläkt
- Dusch
- drier
- Diskmaskin
- Tvättmaskin
Liknande annonser
Hyreskostnad12312 kr/mån






































































