Hyr direkt utan kötid!






Prästbodavägen: lägenhet, 3 rok
Salem
Hyreskostnad
13975 kr/månad
Information
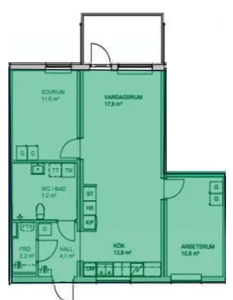
Antal rum
3 rum
Storlek
73 m²
Bostadstyp
Lägenhet
Möblerad
Fråga hyresvärd
Djur
Tillåts
Parkering
Finns
Våning
Fråga hyresvärd
Beskrivning
Lägenheten har genomgående mattlackad ljus ekparkett, vitmålade väggar och fönsterbänkar i granit. Kök med vita luckor, laminatbänkskiva och stänkskydd i vitt kakel är utrustat med induktionshäll, in
Egenskaper
- Diskmaskin
- Tvättmaskin
- Balkong
- Hiss
- Torktumlare
- Husdjur tillåtna
- Rullstolsanpassad
- Säkerhetsdörr
- Värme ingår
- Parkering
Egenskaper
- Diskmaskin
- Tvättmaskin
- Balkong
- Hiss
- Torktumlare
- Husdjur tillåtna
- Rullstolsanpassad
- Säkerhetsdörr
- Värme ingår
- Parkering
I bostadens närområde
Restaurang i närheten
Salems pizzeria
840 m
Matbutik i närheten
ICA Supermarket Salem
960 m
Liknande annonser
Hyreskostnad13975 kr/mån








