Hyr direkt utan kötid!





Helenebergsvägen
Saltsjö-boo
Hyreskostnad
11799 kr/månad
Information
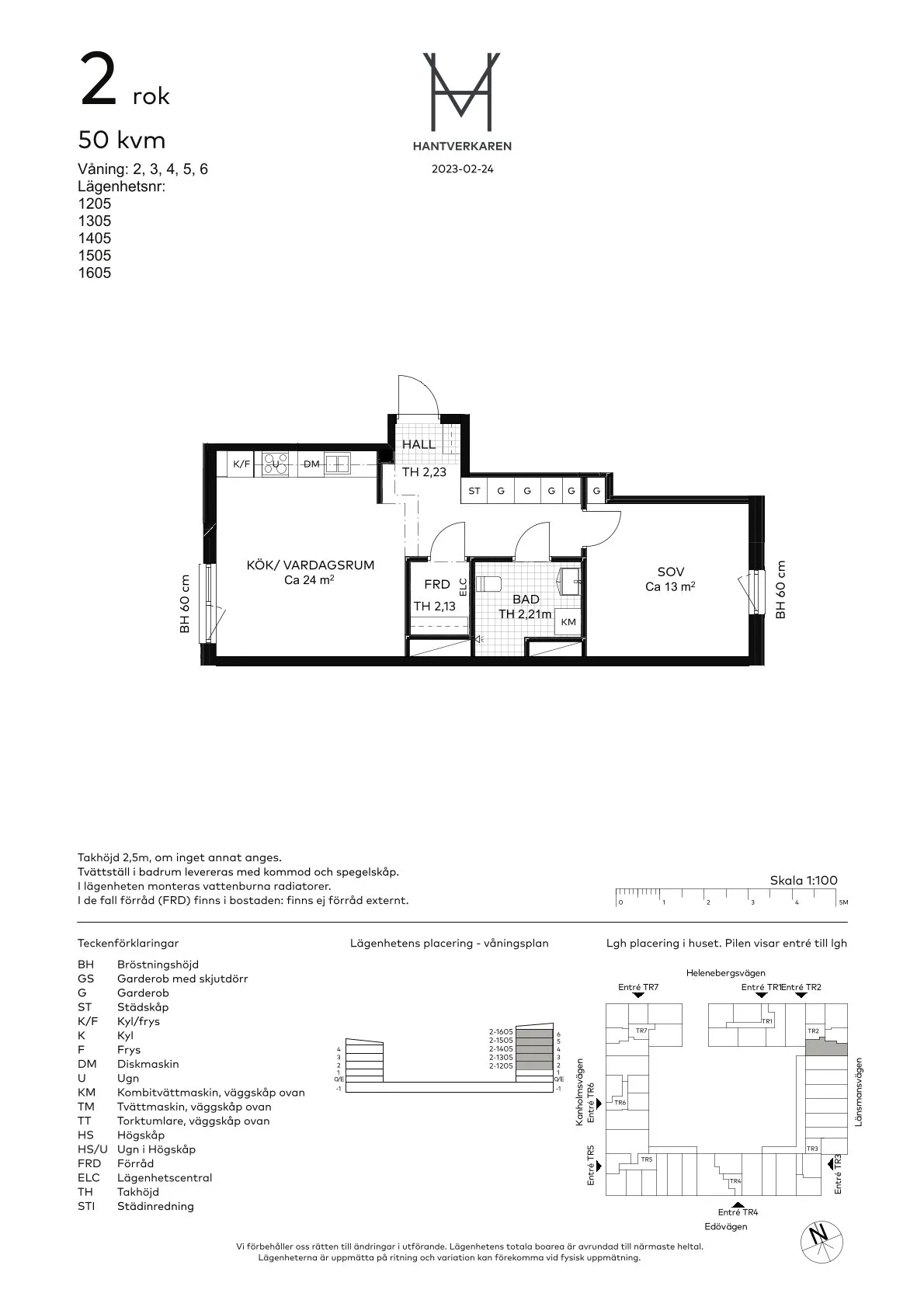
Antal rum
2 rum
Storlek
50.1 m²
Bostadstyp
Lägenhet
Möblerad
Fråga hyresvärd
Djur
Fråga hyresvärd
Parkering
Fråga hyresvärd
Våning
5
Beskrivning
Välkommen till Hantverkaren i Orminge Centrum, en del av Saltsjö-Boo i Nacka kommun. Här bor du bekvämt med bussar, butiker, förskolor, skolor och naturen runt knuten. In till Slussen och de centrala
Egenskaper
- Hiss
- Köksfläkt
- Dusch
- drier
- Diskmaskin
- Tvättmaskin
Liknande annonser
Hyreskostnad11799 kr/mån




































































































