Hyr direkt utan kötid!










Fru Lovisas Gata: lägenhet, 2 rok
Skellefteå
Hyreskostnad
6997 kr/månad
Information
Antal rum
2 rum
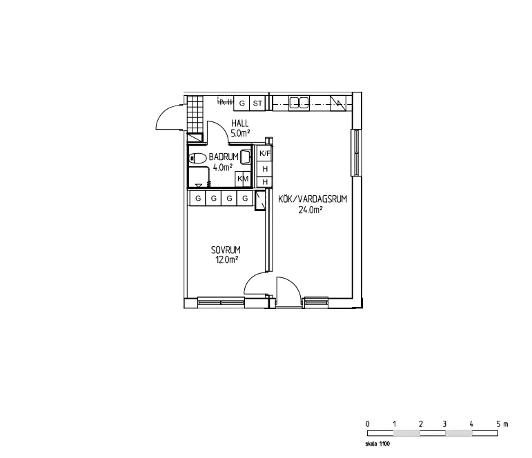
Storlek
48 m²
Bostadstyp
Lägenhet
Möblerad
Fråga hyresvärd
Djur
Tillåts
Parkering
Fråga hyresvärd
Våning
Fråga hyresvärd
Beskrivning
Varmt välkommen till en 2rok om 48,8kvm med genomgående hög och modern standard! HALL Välkomnade hall med svart entrébeläggning som sedan övergår till trägolv. Vita väggar, säkerhetsdörr samt gardero
Egenskaper
- Tvättmaskin
- Dusch
- Hiss
- Torktumlare
- Husdjur tillåtna
- Säkerhetsdörr
- Värme ingår
- Balkong
- Vatten ingår
Egenskaper
- Tvättmaskin
- Dusch
- Hiss
- Torktumlare
- Husdjur tillåtna
- Säkerhetsdörr
- Värme ingår
- Balkong
- Vatten ingår
I bostadens närområde
Matbutik i närheten
Coop Erikslid
480 m
Restaurang i närheten
Tre Kronor
600 m
Skola i närheten
Norrhammarskolan
840 m
Hållplats i närheten
Skellefteå Torsgatan E4 Söder
1200 m
Liknande annonser
Hyreskostnad6997 kr/mån









