Hyr direkt utan kötid!









Bataljonsgatan: lägenhet, 1.5 rok
Strängnäs
Hyreskostnad
8445 kr/månad
Information
Antal rum
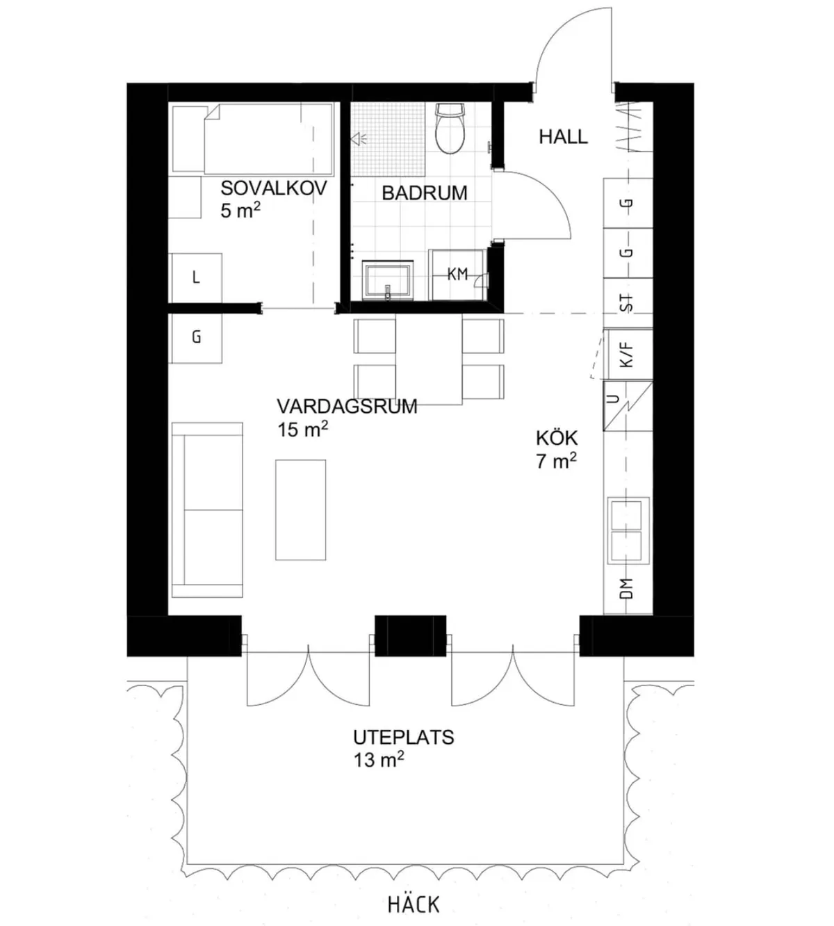
1.5 rum
Storlek
37 m²
Bostadstyp
Lägenhet
Möblerad
Fråga hyresvärd
Djur
Tillåts
Parkering
Finns
Våning
Fråga hyresvärd
Beskrivning
1,5 RoK med solig uteplats i sydvästläge. Lägenheten har ekparkett, vitmålade väggar, kvalitetskök med bänkar av kvartskomposit och rostfria vitvaror, kaklat badrum med duschvägg och förvaring. Tvättm
Egenskaper
- Diskmaskin
- Tvättmaskin
- Dusch
- Balkong
- Hiss
- Torktumlare
- Uteplats
- Husdjur tillåtna
- Säkerhetsdörr
- TV ingår
- Värme ingår
- Parkering
Egenskaper
- Diskmaskin
- Tvättmaskin
- Dusch
- Balkong
- Hiss
- Torktumlare
- Uteplats
- Husdjur tillåtna
- Säkerhetsdörr
- TV ingår
- Värme ingår
- Parkering
I bostadens närområde
Restaurang i närheten
Elsas Kantin
1080 m
Liknande annonser
Hyreskostnad8445 kr/mån








