Hyr direkt utan kötid!








Kristinebergsvägen
Vallentuna
Hyreskostnad
10479 kr/månad
Information
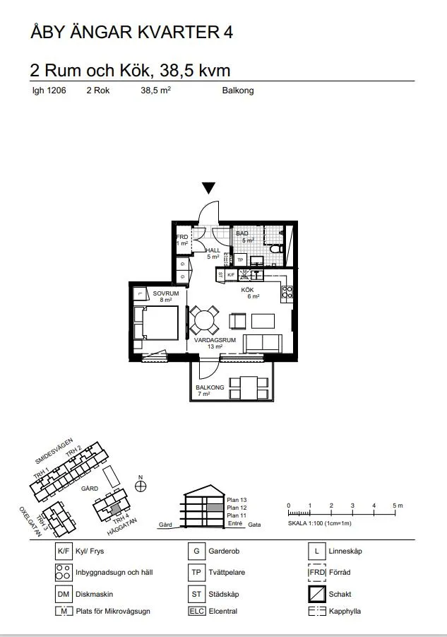
Antal rum
2 rum
Storlek
36 m²
Bostadstyp
Lägenhet
Möblerad
Fråga hyresvärd
Djur
Tillåts
Parkering
Fråga hyresvärd
Våning
Fråga hyresvärd
Beskrivning
I Kristineberg, strax öster om Vallentuna centrum, utvecklar Slättö totalt 126 lägenheter med ett parkeringsgarage. Vi utvecklar de första hyreslägenheterna i området, som är en ny stadsdel med bostäd
Egenskaper
- Diskmaskin
- Tvättmaskin
- Dusch
- Hiss
- Torktumlare
- Uteplats
- Husdjur tillåtna
- Rullstolsanpassad
- Säkerhetsdörr
- Värme ingår
- Garage
Liknande annonser
Hyreskostnad10479 kr/mån

































































