Hyr direkt utan kötid!












Själlandsgatan
Kista
Hyreskostnad
22000 kr/månad
Information
Antal rum
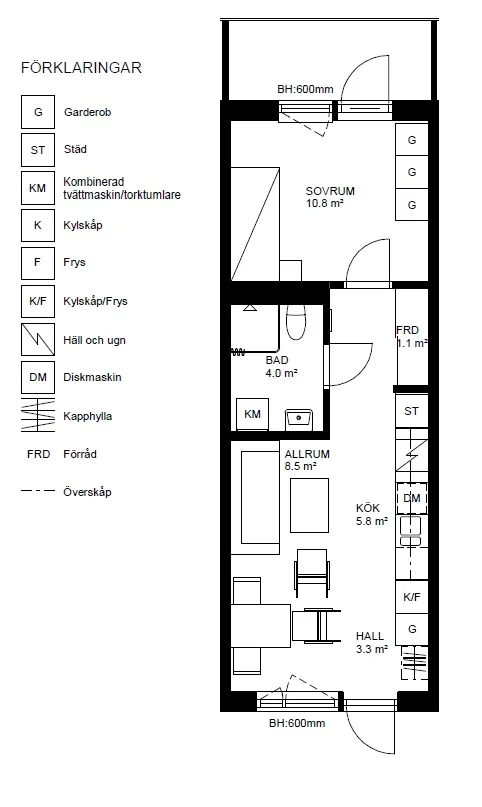
5 rum
Storlek
124 m²
Bostadstyp
Radhus
Möblerad
Möblerad
Djur
Tillåts
Parkering
Finns
Våning
Fråga hyresvärd
Beskrivning
Jag hyr nu ut mitt fina radhus i Kista där jag själv bott och trivts i över 20 år. Huset passar både en familj och ett sällskap som vill dela boende. Här finns gott om plats, smart planlösning och båd
Egenskaper
- Internet
- TV
- Dusch
- Toalett
- Tvättmaskin
- Tvättstuga
- Torkrum
- Frys
- Ugn
- Spis
- Diskmaskin
- Mikrovågsugn
- Parkering
- Uteplats
- Möbler
- Kylskåp
- Husdjur tillåtna
Liknande annonser
Hyreskostnad22000 kr/mån

















































































