Hyr direkt utan kötid!

Nya Nordåsvägen
Floda
Hyreskostnad
10350 kr/månad
Information
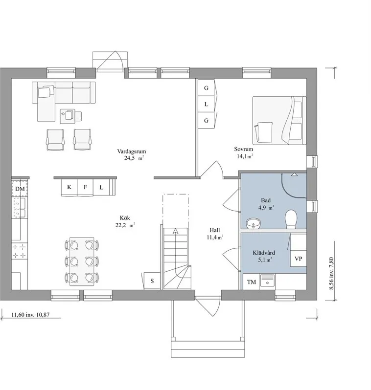
Antal rum
2 rum
Storlek
62 m²
Bostadstyp
Bostad
Möblerad
Möblerad
Djur
Fråga hyresvärd
Parkering
Fråga hyresvärd
Våning
Fråga hyresvärd
Ingen beskrivning angiven
Egenskaper
- Möblerad
Liknande annonser
Hyreskostnad10350 kr/mån




































































