Hyr direkt utan kötid!










Rönnebergavägen: lägenhet, 3 rok
Eslöv
Hyreskostnad
11000 kr/månad
Information
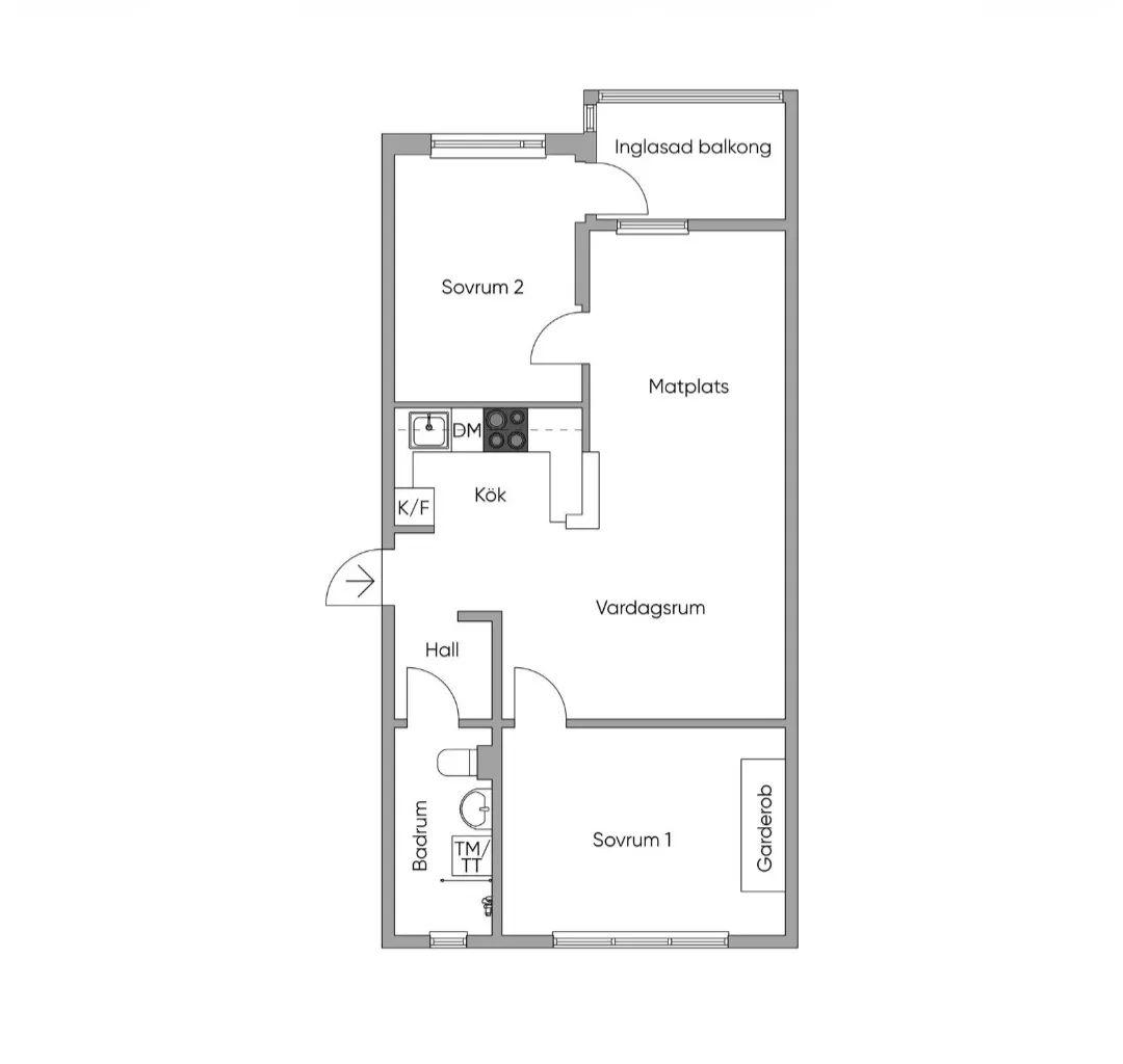
Antal rum
3 rum
Storlek
65 m²
Bostadstyp
Lägenhet
Möblerad
Fråga hyresvärd
Djur
Fråga hyresvärd
Parkering
Fråga hyresvärd
Våning
Fråga hyresvärd
Beskrivning
Nu har du möjlighet att hyra en ljus och välplanerad 3-rumslägenhet i ett lugnt och omtyckt område i Eslöv. Lägenheten har genomgått flera uppgraderingar, där badrummet totalrenoverades December 2021
Egenskaper
- Internet
- TV
- Barnvagnsrum
- Dusch
- Toalett
- Tvättmaskin
- Torktumlare
- Larm
- Balkong
- Förråd
- Elbilsladdare
- Frys
- Ugn
- Spis
- Diskmaskin
- Parkering ingår
- Kylskåp
Egenskaper
- Internet
- TV
- Barnvagnsrum
- Dusch
- Toalett
- Tvättmaskin
- Torktumlare
- Larm
- Balkong
- Förråd
- Elbilsladdare
- Frys
- Ugn
- Spis
- Diskmaskin
- Parkering ingår
- Kylskåp
I bostadens närområde
Hållplats i närheten
Eslöv Saxåvägen
360 m
Liknande annonser
Hyreskostnad11000 kr/mån









