Hyr direkt utan kötid!





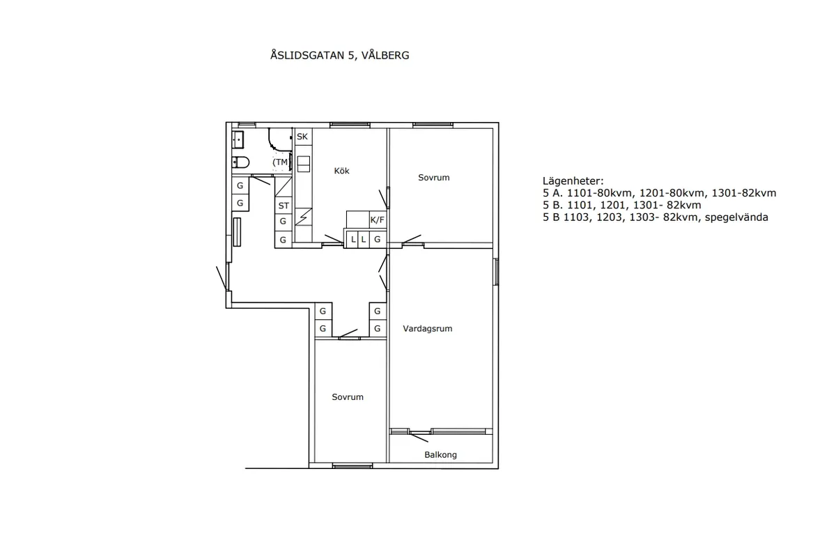
Åslidsgatan: lägenhet, 3 rok, våning 3
Vålberg
Hyreskostnad
9548 kr/månad
Information
Antal rum
3 rum
Storlek
82 m²
Bostadstyp
Lägenhet
Möblerad
Fråga hyresvärd
Djur
Fråga hyresvärd
Parkering
Fråga hyresvärd
Våning
3
Beskrivning
Delvis nyrenoverade lägenheter – inflytt från 15 mars! Nu finns chansen att flytta in i en fräsch lägenhet i Vålberg och trivas från första stund! Perfekt för dig som vill bo bekvämt i ett lugnt områd
Egenskaper
- Balkong
- Tvättrum
- Köksfläkt
- Dusch
Egenskaper
- Balkong
- Tvättrum
- Köksfläkt
- Dusch
Liknande annonser
Hyreskostnad9548 kr/mån






