Hyr direkt utan kötid!



















Brännmanetsgatan: parhus, 6 rok
Bunkeflostrand
Hyreskostnad
21800 kr/månad
Information
Antal rum
6 rum
Storlek
135 m²
Bostadstyp
Parhus
Möblerad
Fråga hyresvärd
Djur
Tillåts
Parkering
Finns
Våning
Fråga hyresvärd
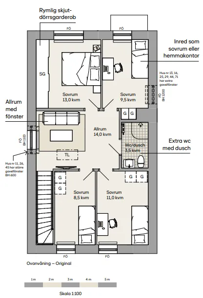
Beskrivning
Helt nytt och modernt hus med miljömärkning (Svanen – NollCO2) uthyres i det populära och familjevänliga området Bunkeflostrand, Malmö. Huset har en boyta på 135 kvm, med totalt 308 kvm tomt. Det vär
Egenskaper
- Toalett
- Dusch
- Kylskåp
- Badkar
- Internet
- Uteplats
- Förråd
- Frys
- Ugn
- Spis
- Diskmaskin
- Mikrovågsugn
- Tvättmaskin
- Torktumlare
- Parkering
- Parkering ingår
- Återvinning
- Husdjur tillåtna
Egenskaper
- Toalett
- Dusch
- Kylskåp
- Badkar
- Internet
- Uteplats
- Förråd
- Frys
- Ugn
- Spis
- Diskmaskin
- Mikrovågsugn
- Tvättmaskin
- Torktumlare
- Parkering
- Parkering ingår
- Återvinning
- Husdjur tillåtna
I bostadens närområde
Hållplats i närheten
Bunkeflostrand Centrum
1080 m
Restaurang i närheten
Oki Doki Sushi
1200 m
Kafé i närheten
Public
1200 m
Liknande annonser
Hyreskostnad21800 kr/mån









