Hyr direkt utan kötid!












Balingsta-Böksta: stuga, 2 rok
Vänge
Hyreskostnad
7000 kr/månad
Information
Antal rum
2 rum
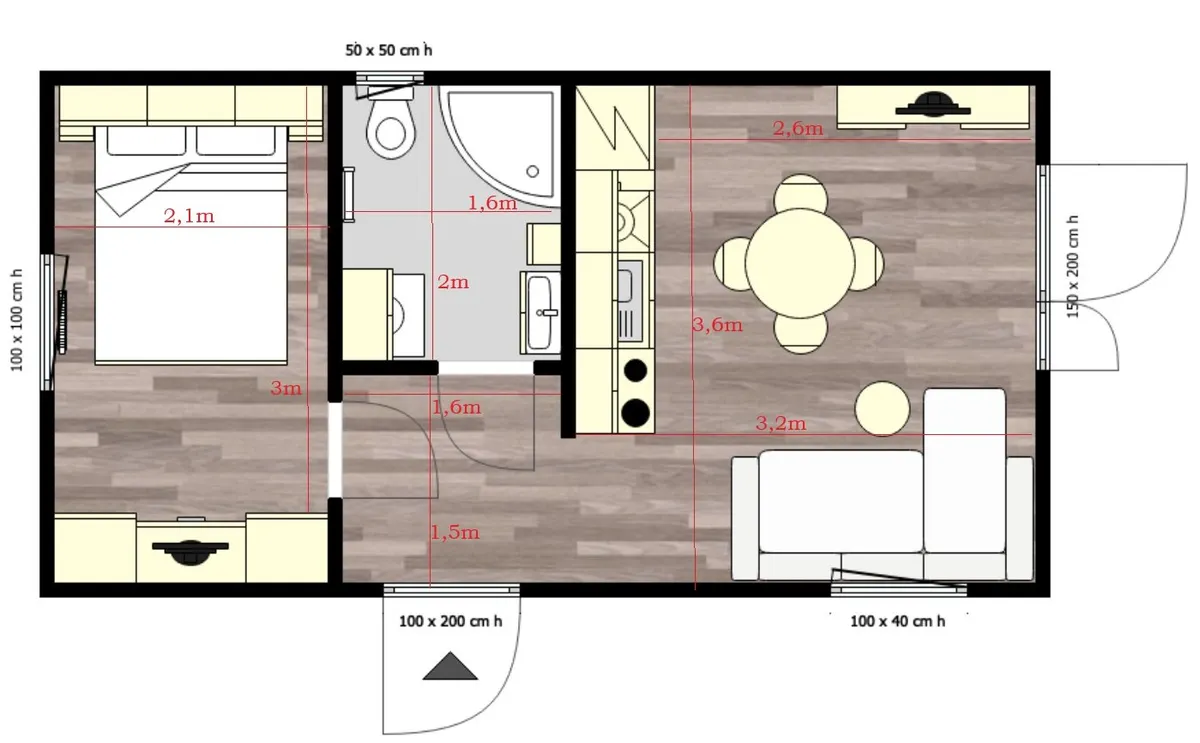
Storlek
30 m²
Bostadstyp
Stuga
Möblerad
Fråga hyresvärd
Djur
Tillåts
Parkering
Fråga hyresvärd
Våning
Fråga hyresvärd
Beskrivning
Jag köpte detta färdiga hus i maj 2022 till min mamma. Nu har min mamma flyttat till ett äldreboende och jag lägger därför ut denna annons för att undersöka intresset att hyra denna bostad. Attefalls
Egenskaper
- Parkering ingår
- Kylskåp
- Husdjur tillåtna
- Frys
- Ugn
- Spis
- Diskmaskin
- Mikrovågsugn
- Dusch
- Toalett
- Tvättmaskin
- Torktumlare
- Uteplats
Egenskaper
- Parkering ingår
- Kylskåp
- Husdjur tillåtna
- Frys
- Ugn
- Spis
- Diskmaskin
- Mikrovågsugn
- Dusch
- Toalett
- Tvättmaskin
- Torktumlare
- Uteplats
Liknande annonser
Hyreskostnad7000 kr/mån







